Lake Charlevoix Shops and Restaurant
Lake Charlevoix, Michigan
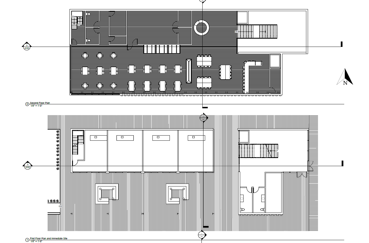
The Lake Charlevoix Shops and Restaurant are located on a floating barge on the South side of the lake. The shops are based on an open plan which allows for a market style floor, for vendors and social interaction. Set back shops have double side access. The upstairs restaurant has operable garage style windows to completely open up in the summer. The building also has operable panels on the west side to block out sunlight, and further insulate the building in the winter.
The objective of the project was to explore building systems and climate in extreme environments. Since the site is located in Charlevoix, the building needed to be designed for extreme cold as well as extreme heat. The project also featured a physical model within a site model.





The selected site is located on the only link between Lake Charlevoix and Lake Michigan, contributing to the extreme summer tourism of Charlevoix. The ability to give visitors direct interaction with the building, site, dock, and the historic preserved light house, encourages tourists to visit the shops and restaurant.






Spring Sophomore Year - Spring 2020